
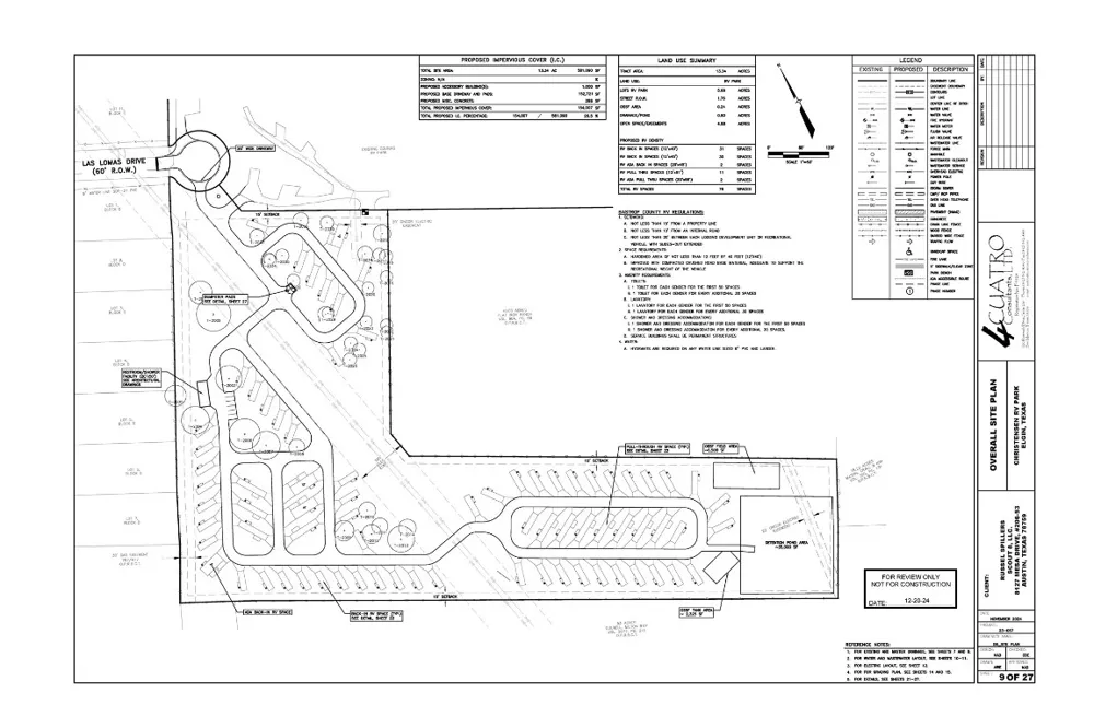
This 13.164-acre property presents a versatile development opportunity with significant upfront work already completed, offering multiple paths for future use. Property Highlights: 13.164 acres of usable land Producing water well on site Electricity available Surveys, plans, and geotechnical reports completed Development Options: Planned 75-site RV park with engineering already in place Potential 14-lot single-family subdivision with half-acre lots, water meters, and septic Alternative layout of 2-acre residential lots with well and septic With strong infrastructure and flexible development potential, this property is well positioned for an investor or developer seeking optionality and reduced upfront legwork.
Based on information submitted to the MLS GRID as of 2026-01-22 21:21:39 UTC. All data is obtained from various sources and may not have been verified by broker or MLS GRID. Supplied Open House Information is subject to change without notice. All information should be independently reviewed and verified for accuracy. Properties may or may not be listed by the office/agent presenting the information.
The information being provided is for consumers' personal, non-commercial use and may not be used for any purpose other than to identify prospective properties consumers may be interested in purchasing. Based on information from the Austin Board of REALTORS®. Neither the Board nor ACTRIS guarantees or is in any way responsible for its accuracy. All data is provided "AS IS" and with all faults. Data maintained by the Board or ACTRIS may not reflect all real estate activity in the market.
Last Updated: . Source: ACTRIS
Provided By
Listing Agent: Janet Spillers (#753826), Phone: (512) 900-3914
Listing Office: TX Brokers (#700477)

Get an estimate on monthly payments on this property.
Note: The results shown are estimates only and do not include all factors. Speak with a licensed agent or loan provider for exact details. This tool is sourced from CloseHack.